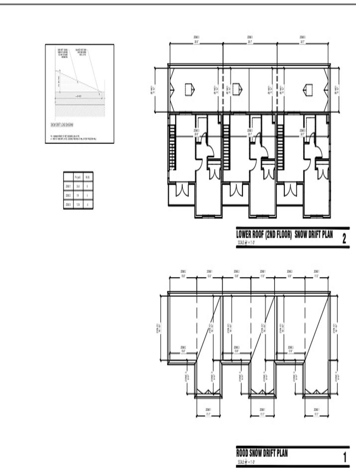
Structural Design

Structural Design of New Residential Buildings

We provide expert structural inspection and repair services for residential and commercial buildings. Whether you're addressing visible damage, planning renovations, or responding to a report, we assess the structure, identify the cause of the issue, and design safe, lasting repairs. Our inspections focus on structural concerns such as cracks, settlement, sloping floors, bowing walls, and damage caused by water infiltration. We also provide structural letters, load evaluations, and post-event assessments when needed. With our thorough analysis and practical solutions, you can make informed decisions about your property with confidence.

What we do

  • Full structural design for single- and multi-family homes
  • Foundation, framing, roof, and floor system design
  • Retaining wall, deck, and platform design
  • Use of all major materials: wood, steel, concrete, CMU and composite materials
  • Wind and seismic load analysis
  • Site-specific solutions for sloped lots or poor soil conditions
  • Coordination with architects, MEPs, and contractors
  • Construction support and shop drawing review